Návod. - Montáž vnútorného osvetlenia.
Moderátoři: Blue Lanos, Scorpion.11, lomngi
Re: Návod. - Montáž vnútorného osvetlenia.
nie nemá a nemaj blbé naražky

Aveo 1.4 16V 69Kw, sedan Šedá Metalíza -
výbava : čím ďalej tým lepšia :D
výbava : čím ďalej tým lepšia :D
- Reklama
Re: Návod. - Montáž vnútorného osvetlenia.
To byla jen otázka
tak teda musím někde najít seznam, abych zjistil co všechno to auto nemá, na co se nemám ptát 
Chevrolet new Aveo (sonic) Misty Lake
Re: Návod. - Montáž vnútorného osvetlenia.
HAHAHA

Aveo 1.4 16V 69Kw, sedan Šedá Metalíza -
výbava : čím ďalej tým lepšia :D
výbava : čím ďalej tým lepšia :D
- rastom1556
- Příspěvky: 425
- Registrován: sob zář 17, 2011 20:06
- Bydliště: Dubnica nad Váhom
Re: Návod. - Montáž vnútorného osvetlenia.
Ak je problém s plošným spojom (návrh, leptanie), kupovaní súčiastok, tak možno pomôže takáto stavebnica.
Rozbaliť, naletovať súčiastky a zapojiť do auta.
http://www.unitech-elektro.sk/katalog/r ... _auta.html
Už aj v supermarketoch, majú hotové zariadenia. Nikdy som to tam neštudoval, tak neviem čo to je zač, len som to v niektorom videl.
Rozbaliť, naletovať súčiastky a zapojiť do auta.
http://www.unitech-elektro.sk/katalog/r ... _auta.html
Už aj v supermarketoch, majú hotové zariadenia. Nikdy som to tam neštudoval, tak neviem čo to je zač, len som to v niektorom videl.
Biele Aveo Sedan komfort 1.4 16V 69kW r.v.2009 , kúpené 5/2009
Re: Návod. - Montáž vnútorného osvetlenia.
Pripájam sa linkom na LED súpravičku + návod na montáž...
http://www.ebay.co.uk/itm/LED-Interior- ... 53ededc323
http://www.ebay.co.uk/itm/LED-Interior- ... 53ededc323
Aveo 4-dverové MY2013, 1,6 16V 85kW / 115k, LTZ, MYLINK, 6 stupňová automatická prevodovka...
Re: Návod. - Montáž vnútorného osvetlenia.
Nedávno som si túto stavebnicu kúpil a upravyl som zapojenie na čas 7s a namontoval do voza.rastom1556 píše:Ak je problém s plošným spojom (návrh, leptanie), kupovaní súčiastok, tak možno pomôže takáto stavebnica.
Rozbaliť, naletovať súčiastky a zapojiť do auta.
http://www.unitech-elektro.sk/katalog/r ... _auta.html
Už aj v supermarketoch, majú hotové zariadenia. Nikdy som to tam neštudoval, tak neviem čo to je zač, len som to v niektorom videl.
Chevrolet Orlando 1,8 16V 104KW r.v.2012
Chevrolet Aveo 1,2 16V 62KW r.v.2010 predané
Daewoo Espero 1,5 16V 66KW r.v.1996 predané
Škoda Felícia 1,3 50KW LPG post mortem
Škoda 105 LS 37KW post mortem
Chevrolet Aveo 1,2 16V 62KW r.v.2010 predané
Daewoo Espero 1,5 16V 66KW r.v.1996 predané
Škoda Felícia 1,3 50KW LPG post mortem
Škoda 105 LS 37KW post mortem
Re: Návod. - Montáž vnútorného osvetlenia.
A? Funguje to ako ma?si spokojny ?
Aveo 1.4 16V 69Kw, sedan Šedá Metalíza -
výbava : čím ďalej tým lepšia :D
výbava : čím ďalej tým lepšia :D
Re: Návod. - Montáž vnútorného osvetlenia.
Funguje presne podľa mojich predstáv,len pri zapájaní som tam predpripravyl kabeláž na svetlá do zadu na zadné stĺpiky , kábel na osvetlenie na nohy do všetkých dverí a to ma spomaľovalo pri práci toľko káblov tam pozapájať.Ale podarilo sa!

Chevrolet Orlando 1,8 16V 104KW r.v.2012
Chevrolet Aveo 1,2 16V 62KW r.v.2010 predané
Daewoo Espero 1,5 16V 66KW r.v.1996 predané
Škoda Felícia 1,3 50KW LPG post mortem
Škoda 105 LS 37KW post mortem
Chevrolet Aveo 1,2 16V 62KW r.v.2010 predané
Daewoo Espero 1,5 16V 66KW r.v.1996 predané
Škoda Felícia 1,3 50KW LPG post mortem
Škoda 105 LS 37KW post mortem
Re: Návod. - Montáž vnútorného osvetlenia.
Takze mas v aute Led ? Alebo obyc ziarovku ?ak mas led a funguje.to tak to hned.kupujem aj ja ,objednsval si to alebo to mas z nejakeho elektra u vas ? Diky
Aveo 1.4 16V 69Kw, sedan Šedá Metalíza -
výbava : čím ďalej tým lepšia :D
výbava : čím ďalej tým lepšia :D
Re: Návod. - Montáž vnútorného osvetlenia.
Teraz som to skúšal s LEDkou a narazil som na problém že veľmy jemne svieti po vypnutí
ale zajtra to poriešim.Prepočítaval som napetia a prúdy v oneskorovači a mám riešenie ktoré zajtra vyskúšam.
Zajtra dám vedieť. 
Chevrolet Orlando 1,8 16V 104KW r.v.2012
Chevrolet Aveo 1,2 16V 62KW r.v.2010 predané
Daewoo Espero 1,5 16V 66KW r.v.1996 predané
Škoda Felícia 1,3 50KW LPG post mortem
Škoda 105 LS 37KW post mortem
Chevrolet Aveo 1,2 16V 62KW r.v.2010 predané
Daewoo Espero 1,5 16V 66KW r.v.1996 predané
Škoda Felícia 1,3 50KW LPG post mortem
Škoda 105 LS 37KW post mortem
Re: Návod. - Montáž vnútorného osvetlenia.
Tak problém s LED osvetlením je vyriešený.Na doske oneskorovača je treba pridať odpor 330Ω/2W medzi vstupy + a ☼ .

- Přílohy
-
- 6518.jpg (17.39 KiB) Zobrazeno 8216 x
Chevrolet Orlando 1,8 16V 104KW r.v.2012
Chevrolet Aveo 1,2 16V 62KW r.v.2010 predané
Daewoo Espero 1,5 16V 66KW r.v.1996 predané
Škoda Felícia 1,3 50KW LPG post mortem
Škoda 105 LS 37KW post mortem
Chevrolet Aveo 1,2 16V 62KW r.v.2010 predané
Daewoo Espero 1,5 16V 66KW r.v.1996 predané
Škoda Felícia 1,3 50KW LPG post mortem
Škoda 105 LS 37KW post mortem
Re: Návod. - Montáž vnútorného osvetlenia.
Parada
jak pridem dokov hned to kupim a nahodou schemu zapojenia nemas ?lebo som tu videl problemy so zapojenim a nerad by som to odpalil diky 
Aveo 1.4 16V 69Kw, sedan Šedá Metalíza -
výbava : čím ďalej tým lepšia :D
výbava : čím ďalej tým lepšia :D
Re: Návod. - Montáž vnútorného osvetlenia.
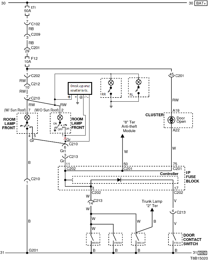
Tak tu je schéma zapojenia v Avejku. 
Chevrolet Orlando 1,8 16V 104KW r.v.2012
Chevrolet Aveo 1,2 16V 62KW r.v.2010 predané
Daewoo Espero 1,5 16V 66KW r.v.1996 predané
Škoda Felícia 1,3 50KW LPG post mortem
Škoda 105 LS 37KW post mortem
Chevrolet Aveo 1,2 16V 62KW r.v.2010 predané
Daewoo Espero 1,5 16V 66KW r.v.1996 predané
Škoda Felícia 1,3 50KW LPG post mortem
Škoda 105 LS 37KW post mortem
Re: Návod. - Montáž vnútorného osvetlenia.
Takze + zapojim na + pri lampe , minus ukostrim na.kostru a tie dalsie dve pripojim na spinac dveri ? 
Aveo 1.4 16V 69Kw, sedan Šedá Metalíza -
výbava : čím ďalej tým lepšia :D
výbava : čím ďalej tým lepšia :D
Re: Návod. - Montáž vnútorného osvetlenia.
Zapojíš to tak že + na + pri lampe - na kostru voza druhí káblik ktorý ide na lampu sa prestrihne a ten koniec čo ide z lampy ide do oneskorovača na znak žiarovky a druhý káblik ten čo ide do útrob strechy voza ide zapojiť do oneskorovača na znak spínača.Jedna otázka na teba ,koľko sekúnd chceš aby to oneskorovalo vypnutie svetla?Podľa toho treba zmeniť hodnotu odporu R3 na oneskorovači.
Chevrolet Orlando 1,8 16V 104KW r.v.2012
Chevrolet Aveo 1,2 16V 62KW r.v.2010 predané
Daewoo Espero 1,5 16V 66KW r.v.1996 predané
Škoda Felícia 1,3 50KW LPG post mortem
Škoda 105 LS 37KW post mortem
Chevrolet Aveo 1,2 16V 62KW r.v.2010 predané
Daewoo Espero 1,5 16V 66KW r.v.1996 predané
Škoda Felícia 1,3 50KW LPG post mortem
Škoda 105 LS 37KW post mortem